£975,000

8 Cobblestones, Hempstead

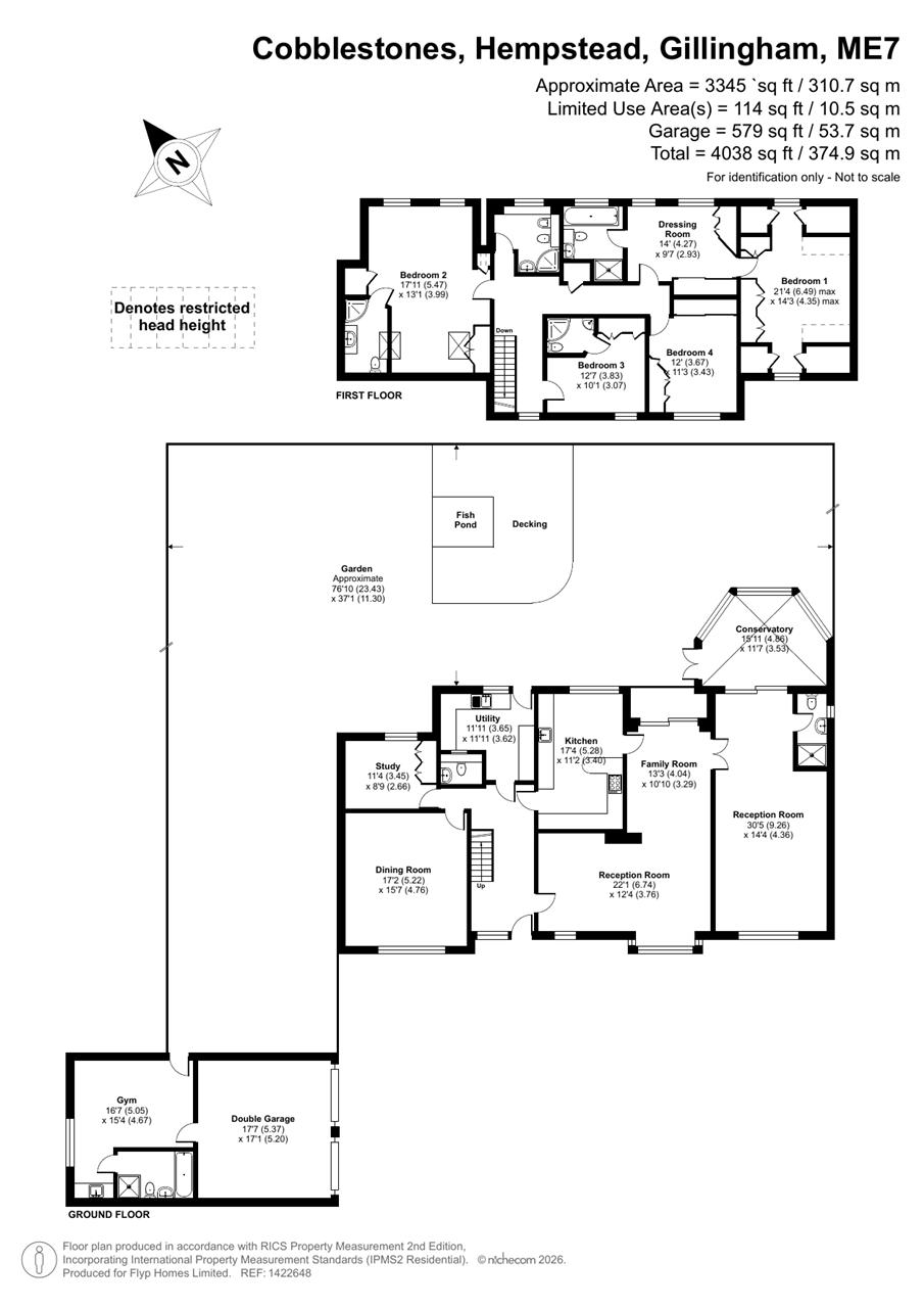
  • 5 Bed
  • 5 Bathrooms
  • 4 Receptions

This magnificent detached family residence offers almost 3200 sq ft of beautifully presented and highly versatile living space, discreetly positioned at…

Key features

  • Impressive Modern Detached House
  • Set Within Secluded Private Cul-De-Sac
  • Over 3000 Sq. Ft Of Versatile Accommodation
  • Four/Five Bedrooms - Five Bathrooms
  • Four Generously Proportioned Reception Rooms
  • Spacious Open Plan Kitchen/Breakfast Room Plus Utility Room
  • Extensive Parking, Double Garage & Gym With Steam Room
  • Generous 0.29 Acre Plot With Attractive Landscpaed Gardens
  • Exclusive Semi-Rural Yet Highly Accessable Location
  • EPC RATING: B - COUNCIL TAX BAND: G

Full property description

This magnificent detached family residence offers almost 3200 sq ft of beautifully presented and highly versatile living space, discreetly positioned at the end of a quiet cul-de-sac on a generous 0.29-acre plot, ensuring a high degree of privacy and tranquillity.

Thoughtfully designed for modern family living, the home provides four to five spacious bedrooms, three of which feature en-suite bathrooms. The accommodation includes two well-proportioned reception rooms, a formal dining room, study, and a bright conservatory that enhances the sense of space and natural light throughout.

The attractive faade blends traditional brickwork with a balanced, contemporary layout. A central entrance with decorative glazed double doors sits beneath a sheltered porch, while symmetrical windows and an extended ground floor footprint enhance both character and presence. The roofline is fitted with solar panels, contributing to the homes strong energy efficiency credentials, and the sweeping block-paved driveway offers extensive parking alongside a neatly maintained frontage.

Internally, the ground floor is centred around a welcoming entrance hall, with a natural progression from more formal living spaces to a spacious, open-plan arrangement at the rear. The kitchen connects seamlessly to a family area and a substantial additional reception room, creating an ideal environment for everyday living and entertaining. The conservatory provides a further reception space with direct access to the garden, while a utility room and ground floor WC add practicality.

Upstairs, the layout is arranged around a central landing, leading to four bedrooms, including a particularly generous principal suite with dressing area. Two further bedrooms benefit from en-suite facilities, with additional bathroom provision serving the remaining accommodation.

A standout feature of the home is the highly adaptable second lounge, complete with a concealed king-size wall bed, allowing it to function effortlessly as a fifth bedroom with en-suite when required.

OUTSIDE:

This property occupies almost a third of an acre with a well-established and thoughtfully arranged rear garden, featuring a combination of lawn, patio, and a recently updated decking area, ideal for outdoor dining and relaxation. Mature planting and a feature fish pond add character, creating a private and inviting setting.

Further enhancing the property is a detached outbuilding incorporating a double garage and a fully equipped annexe, currently arranged as a gym and steam room with its own facilities. This space offers excellent potential for a home office, guest accommodation, or independent living.

Additional benefits include parking for multiple vehicles, a water softener system, and a Verisure security setup. The property also boasts an EPC rating of B, supported by a 9 kWh solar panel system with battery storage operating under a favourable FIT tariff.

SITUATION:

Hempstead, located on the outskirts of Gillingham in Kent, is a highly sought-after residential area known for its blend of suburban comfort and semi-rural surroundings. It offers a peaceful setting while remaining exceptionally well-connected, making it ideal for families and commuters alike.

At the heart of the area is Hempstead Valley Shopping Centre, providing a wide range of shops, supermarkets, restaurants, and everyday amenities, along with reputable local schools and leisure facilities nearby. The wider Medway towns, including nearby Rochester, offer a rich mix of history, culture, and riverside charm.

Rochester is particularly well known for its historic castle, cathedral, and vibrant high street filled with independent shops, cafs, and restaurants. Gillingham itself provides further shopping, healthcare, and educational facilities, as well as access to green spaces and sports amenities. Maidstone, the county town of Kent, is also within easy reach and offers an extensive selection of retail outlets, including Fremlin Walk and Maidstone East, alongside a variety of dining, entertainment, and leisure options. The area is well served by road links, with the M2 and M20 both easily accessible, providing convenient connections across Kent and beyond.

For commuters, there are excellent transport links into London. High-speed rail services from nearby stations such as Gillingham, Rainham, and Rochester provide direct access to London St Pancras International in approximately 4050 minutes, while additional services run to London Victoria and London Charing Cross. Regular bus routes also connect Hempstead to surrounding towns and mainline stations, making daily travel straightforward and efficient. Overall, Hempstead offers an ideal balance of convenience, connectivity, and quality of life, with easy access to both countryside and key urban centres.

We endeavour to make our sales particulars accurate and reliable, however, they do not constitute or form part of an offer or any contract and none is to be relied upon as statements of representation or fact. Any services, systems and appliances listed in this specification have not been tested by us and no guarantee as to their operating ability or efficiency is given. All measurements, floor plans and site plans are a guide to prospective buyers only, and are not precise. Fixtures and fittings shown in any photographs are not necessarily included in the sale and need to be agreed with the seller.

Interested in this property?

Your next step is choosing an option below. Our property professionals are happy to help you book a viewing, make an offer or answer questions about the local area.


Try one of our useful calculators...

Stamp duty calculator

£0

Mortgage calculator
(10%)
years
%

£0/month

Help to buy calculator
(10%)

£0

£0

Similar properties