Sold

£550,000

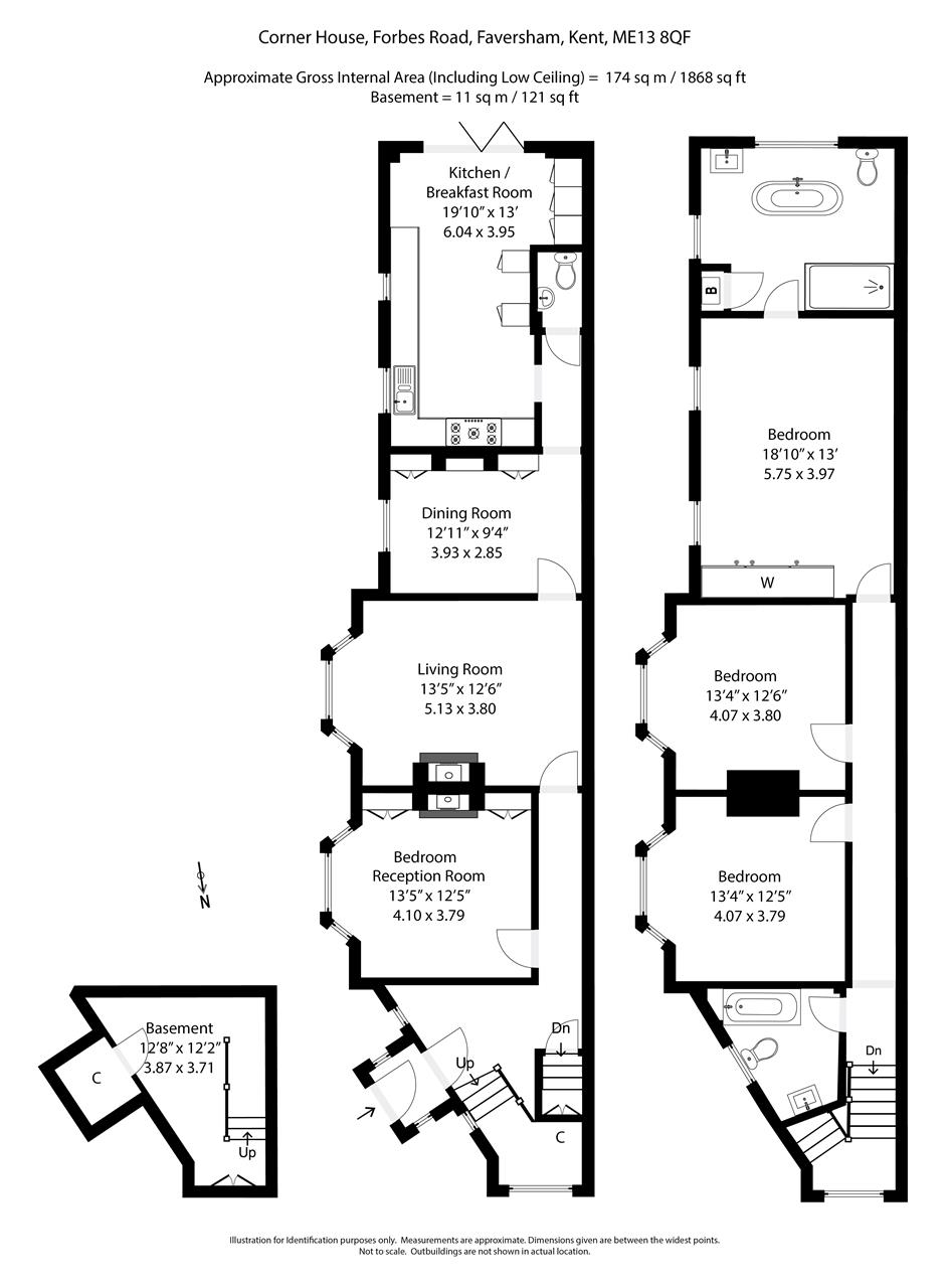
Corner House, Faversham

  • 4 Bed
  • 2 Bathrooms
  • 2 Receptions

An extraordinarily spacious Victorian residence offering almost 2000 sq.ft of versatile space which is flourishing in period features. Stained glass…

Key features

  • Substantial Victorian End Of Terrace Residence
  • Almost 2000 Sq.Ft Of Versatile Space
  • Flourishing In Period Charm & Original Features
  • Three Receptions & Kitchen Breakfast Room
  • Large Bay Windows & Bi-fold Doors
  • Exceptionally Energy Efficient - Wood Burning Stoves & Solar Panels
  • Two Minute Walk To Train Station With High Speed Links To London
  • South Facing Walled Rear Garden & Off Road Parking
  • Chain Free
  • EPC RATING: C - COUNCIL TAX: D

Full property description

An extraordinarily spacious Victorian residence offering almost 2000 sq.ft of versatile space which is flourishing in period features. Stained glass windows, intricate architrave, ceiling cornicing, and original cupboards balance beautifully with the modern enhancements the property has seen over the years.

Corner House is just a two minute walk to the train station which has high speed links into London and just five minutes to the market town centre, the property occupies an enchanting plot which includes a walled, south facing rear garden which wraps around the side and to the front of the property. The faade is particularly attractive, with a handsome wooden front door set within decorative brick work and framed by colourful stained-glass windows.

The property is exceptionally energy efficient, with good level of insulation, solar panels, double glazing, wood burning stoves, and a gas central heating system, all of which has helped reduce energy consumption and contributed to a greener way of living.

The main front door opens into an impressive entrance hall with incredibly high ceilings which are dressed in original cornicing. The exposed wood panelling complements the original Victorian doors and high skirting boards. Stairs lead to the first floor whilst a doorway provides access to the cellar, ideal for storage.

The entrance hall with Victorian archway and intricate corbels expands into a corridor, with engineered oak flooring which has been laid seamlessly throughout and leads one to three receptions, a cloak room and well-appointed kitchen breakfast room found at the far end.

Two of the receptions rooms have stunning bay windows and wood burning stoves, one of which is encompassed by an elegant stone mantle, whilst the room adjacent to the kitchen serves well as a formal dining room which has characterful wooden cupboards set within the alcoves.

The kitchen breakfast room has a vast array of gloss units which integrate main appliances and have been finished with solid work tops and set upon stone flooring. A breakfast table has been placed next to the Bi-fold doors which open onto the south facing walled rear garden.

To the first floor one will find three double bedrooms and a well-appointed family bathroom. Two bedrooms have beautiful bay windows, whilst the principal bedroom is exceptionally large and benefits from fitted wardrobes and a large, dual aspect luxury en-suite bathroom with walk in shower, separate bathtub, and underfloor heating. There is opportunity to divide the principal bedroom to create an addition fourth bedroom.

OUTSIDE:

The enchanting walled garden wraps around the property, and has been beautifully manicured offering a driveway, patio area and well-kept lawn which is bordered by shrubs and young trees. To the side of the house there is wild lavender bordering a little path where one will find a small shed and plenty of space for waste bins or growing vegetables.

SITUATION:

The property is conveniently situated on the Corner of Forbes and the very popular Athelstan Road, which is moments from the outstanding Ethelbert Road primary school, it is also a few minutes walk to Favershams mainline railway station which has high speed links to London.

The charming market town of Faversham has a wide range of high street shops and independent retailers which adorn its attractive high street and its bustling market square. The town also offers excellent leisure facilities with an indoor and outdoor swimming pool, a cinema, a large park and recreation ground, a museum and numerous pubs and restaurants.

It has a good selection of primary schools and two secondary schools, one of which is the renowned Queen Elizabeth Grammar School. Faversham has a mainline railway station with a regular service to London Victoria, Cannon Street and Charing Cross and a high-speed rail link to London St. Pancras. The nearby M2 motorway gives excellent and fast access to London.

The city of Canterbury is approximately 10 miles away this has a vibrant city centre, which has a wide array of High Street brands alongside independent retailers, cafes and international restaurants and offers a selection of sporting, leisure, and recreational amenities, including the Marlowe Theatre.

The seaside town of Whitstable, famous for its seafood and annual oyster festival held at the vibrant harbour and picturesque quayside, also has a variety of shops, boutiques and restaurants, a good selection of primary and secondary schools and excellent leisure facilities and is 8 miles away.

We endeavour to make our sales particulars accurate and reliable, however, they do not constitute o form part of an offer or any contract and none is to be relied upon as statements of representation or fact. Any services, systems and appliances listed in this specification have not been tested by us and no guarantee as to their operating ability or efficiency is given. All measurements and floor plans are a guide to prospective buyers only, and are not precise. Fixtures and fittings shown in any photographs are not necessarily included in the sale and need to be agreed with the seller.

Interested in this property?

Your next step is choosing an option below. Our property professionals are happy to help you book a viewing, make an offer or answer questions about the local area.


Try one of our useful calculators...

Stamp duty calculator

£0

Mortgage calculator
(10%)
years
%

£0/month

Help to buy calculator
(10%)

£0

£0

Similar properties